
Current Projects 2025
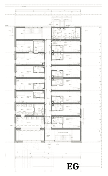
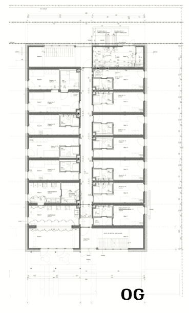
FREIBURG
Boarding House
Project Description:
Complete timber modular construction (54 modules) for residential use, including units with en-suite bathrooms, common areas, technical rooms and stairwells, including full interior fit-out.
Production Period:
August 2024 - October 2024
Construction Period:
November 2024 – February 2025Mainz
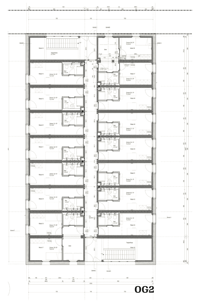
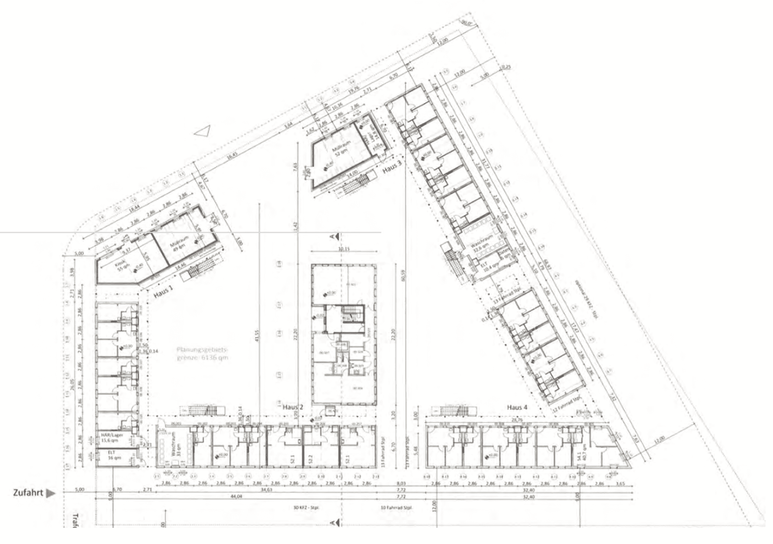
Mainz
Residential Building for Refugees
Project Description:
Complete timber modular construction (170 modules, 96 residential units across four buildings), including full interior fit-out, plus an additional social building constructed using conventional 2D construction methods.
Production Period:
December 2024 – June 2025
Construction Period:
February 2025 – July 2025FREIBURG



















